
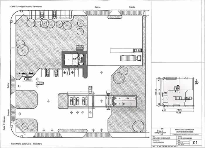
La estación tendrá 131,39 m2 cubiertos, 1.745 m2 de playa de estacionamiento y maniobras y 1.614 m2 de espacios verdes y plaza. La superficie total es de 5.310,39 m2.
El gobernador Sergio Ziliotto le entregó a Ariel Mauna, Presidente de la Comisión de Fomento de Chacharramendi, los planos de la nueva estación de servicio de Pampetrol en la localidad oesteña. El mandatario le confirmó que el próximo 23 de noviembre se licitará la obra, largamente esperada por los habitantes de la zona. La inversión supera los 100 millones de pesos.
En el despacho del Gobernador, junto al secretario de Asuntos Municipales Rogelio Schanton, fueron presentados los planos para la licitación de la estación de servicio de bandera que, operada en conjunto por Pampetrol y la comuna de Chacharramendi, dará a la localidad mayor calidad de vida para sus habitantes y un servicio para quienes transiten por la Ruta Nacional Nº 143, generando mano de obra local y mayor actividad económica.
Ariel Mauna
Mauna aseguró que el gobernador le dio “una buena noticia”: se licitará la estación de servicio y “la apertura de sobres será el 23 de noviembre. En los próximos días las empresas podrán presentarse para cotizar”.
El jefe comunal dijo estar “muy contento y muy agradecido con el gobierno provincial”, y recordó que “durante la campaña Ziliotto se comprometió a gestionarlo y cumplió su palabra”.
“Por nuestro pueblo pasa mucha gente que viaja hacia el Sur -detalló Ariel Mauna- ahí comienza la Ruta Nº 20, del Desierto, y esto generará mano de obra, un mejor aprovechamiento del turismo y una dinamización de la economía local”, finalizó.
La estación
Ubicada en la colectora de la Ruta Nacional Nº 143, la estación de servicio abastecerá la demanda de combustible -Super, Premium, Gasoil y Gasoil Premium-, además de otros servicios destinados a los clientes que proporcionarán valor añadido, como sala de descanso, estacionamiento y venta de suministros.
Detalles de la obra
Con un presupuesto de $100.808.354,50, un plazo de ejecución de 360 días y una superficie total de 5.310,39 m2, la nueva estación de servicio contará con un edificio principal totalmente equipado con una zona de oficinas, otra de almacenaje, sector de baños y un local comercial. Además tendrá un sector recreativo y un área de descanso y estacionamiento.
Las instalaciones, sujetas a la reglamentación vigente para estaciones de servicio dispuesta por la Secretaría de Energía, tendrá 131,39m2 cubiertos, 1.745 m2 de playa de estacionamiento y maniobras y 1.614 m2 de espacios verdes y plaza; contarán con sistema de saneamiento, servicio contra incendios, instalación eléctrica, gas, wifi y telefonía.